
?產品概述:旋流沉砂器主要用于污水處理廠(站)中的預處理,用于初沉池前,格柵后,去除污水中的較大無機顆粒。

工作原理及構造:進水從切線方向進入池中,形成旋流,軸向流攪拌機控制水流的流速與流態,水流夾帶大 量粘附有機物的砂,在槳板攪拌剪切下相互剝離,砂依靠砂的自身重力和旋流作用向中 心砂斗下沉,剝離的有機物隨軸向水流向上溢走。砂斗積聚的砂經空氣提升泵或砂泵提 升,砂與少量污水進入池外砂水分離器內,砂分離外排,污水回流至格柵井。
特點:占地面積小;沉砂效果受水量變化影響很小。砂水分離效果 好,分離出的砂子含水率低,有機含量少,便于運輸;系統采 用PLC 自動控制洗砂、排砂周期,運行安全、可靠。操作方 便、維護簡單,壽命長;鼓風機采用國外先進技術,噪音低;對 周圍環境影響小,衛生條件好。
主要技術參數:The main technical parameters

注:1、水力表面負荷:200 m3/m2·h
2、水力停留時間:20-30s
3、進水流速:Q=(40-80%)QMax 時 V=0.6-0.9/s; Q=QMax 時V×1.2m/s,Q=QMin 時 V>0.15m/s。
4、進出水渠道夾角不小于270°。

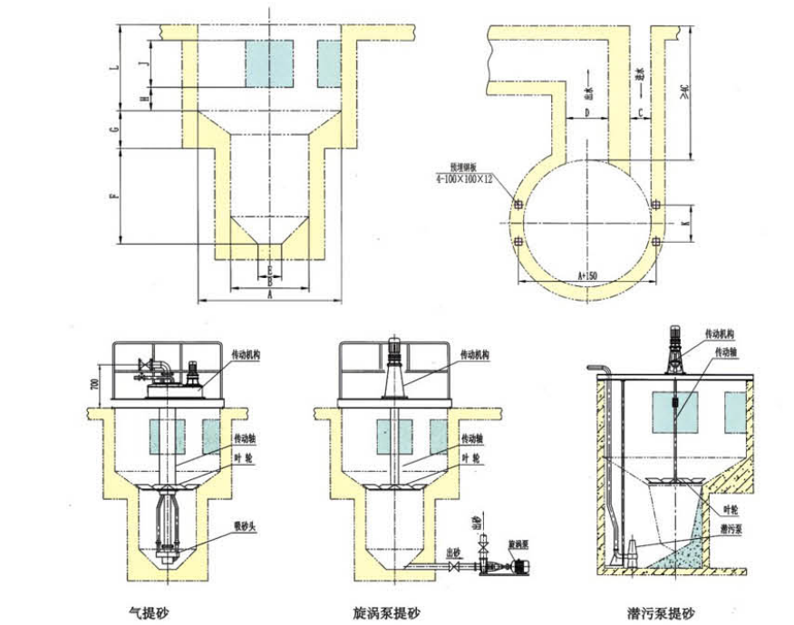
基礎及預埋件布置圖

旋流沉砂池工藝流程圖

旋流沉砂池典型布置圖

訂貨須知:
1、訂貨時請注明配套設備的項目。
2、注明設備主體所用的材質(碳鋼或不銹鋼)。
3、本系統不包括管道、閥門及流量計,需要時請注明。
4、本設備法蘭按JB/T81-94,PN0.6制造。
5、XLC180-XLC1080 可做成鋼制池整體供貨,大于 XLC1080 時,可做成混凝土池或在現場焊接制成鋼制池。若 需要非標流量的沉砂池,請提供土建圖,可根據用戶需求另 行設計。
上一篇: XCQ 型斜板沉淀器
下一篇:NYJ 型鏈板式刮油刮泥機